Anwendungsbeispiele
 
            Anwendungsbeispiele
Anwendungsbeispiele
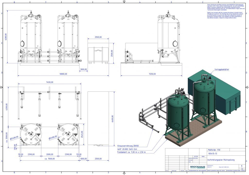
Um die nach dem Start auftretende neue Herausforderung zu meistern, wurde eine neue Kreuzverrohrung und ein zusätzlicher Vorlagebehälter installiert. Mit dem neuen Equipment und der entsprechenden Steuerung konnten die Filter nun zurückgespült werden. Das ermöglichte die Rückführung des Eisenhydroxidschlamms aus dem Aktivkohlefilter in den Vorlagebehälter und verhinderte somit das Zusetzen. Die Rückspülung der Filter erfolgt nun drei Mal pro Tag und wird zusätzlich von einer Differenzdruckmessung unterstützt. Durch diese Maßnahmen konnte ein stabiler Prozess implementiert werden, der die Ablaufspezifikationen seit dem Jahr 2014 erfüllt.
